今天是:2026年04月20日
设为首页 | 加入收藏
当前位置:
首页>>
厂房出售
编 号: KF-12285
业务意向: 出售
所在区域: 周边地区
建筑结构: 其它
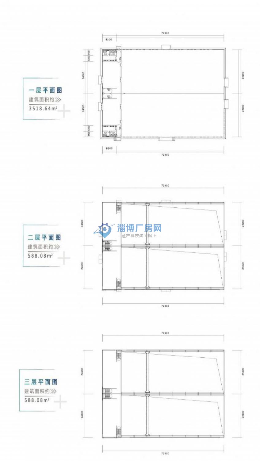
建筑面积: 3000 m²
联 系 人: 王经理
价 格:3 元/平米
联系电话:400-8552-111
所在地址: 山东淄博淄川昆仑工业园好位置
备注说明
品质厂房
环评随时看房 国标钢结构现房厂房出租 配套齐全
租金:0.45元/平方/天
地区:沂源县
面积:5000m²
绿天使沂源厂房招租,房租减免
面积:10000m²
专业化园区 最后一套现房销售 即买即用
地区:周边地区
面积:1800m²
淄博国家级创新大厦招商
地区:临淄区
沂源新建厂房周围配套齐全享当地免租政策
最新推荐
1
出租博山厂房 免租政策 政府补贴
[博山区]
均价:0.3元/平米/天
2
淄博市博山区经济开发区优质厂房出租可分割3年免租
均价:0.32元/平米/天
3
新建厂房,可分割,免租金
4
博山高标准厂房,可分割,前期免租金
5
厂房出租 免租金 可分割
均价:0.4元/平米/天
6
免租金优惠政策,可分割钢结构厂房
7
沂源电子信息产业园 园区招商 优惠政策
[沂源县]
均价:面议
8
张博路旁1000平厂房仓库车间出租。
[张店区]
9
绿天使创新基地写字楼,厂房招商
均价:0.1元/平米/天
10
免费厂房,淄博博山区招商引资,各种优惠政策